


产品中心
Product Center -
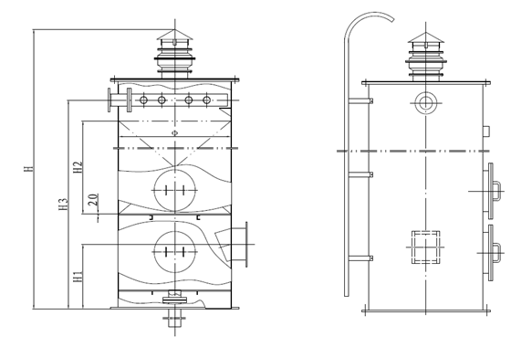
除二氧化碳器
2024-07-09 11:42:29
产品详情
简介、用途:
除碳器用于去除在水软化、除盐过程中,原水经过氢离子交换后,水中的重碳酸盐被破坏而产生大量游离二氧化碳的设备,它设置在阳(H)离子交换器后面。
工作原理:
含有二氧化碳的水进过经喷淋装置喷洒,从上往下流过填料层时,水在填料表面形成一种薄膜的流动,薄膜的形成创造了水中CO2和容器底部进来的空气密切接触的条件,使水中气体与空气中的气体容易自由交换,空气中的CO2含量小,所以水中的CO2很容易就扩散到空气中,水经除碳器后后残留的二氧化碳<5mg/L。
技术参数:
工作压力:常压
工作温度:常温
进水CO2含量:≤330mg/L

出水CO2含量:≤5mg/L
喷淋密度:60米3/米2.时
流 量:7T/H~510T/H
规 格:Φ400-Φ3600
设备照片:

除二氧化碳器尺寸规格表: (单位:毫米)




