


产品中心
Product Center -
混床
2024-07-09 11:25:41
产品详情
简介:
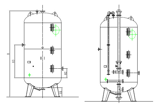
混床是指用来进行离子交换反应的柱状压力容器,是管柱法离子交换的交换设备。在实验室、工业中常被使用。按再生方式分可分为体内再生混床、体外再生混床、阴树脂外移再生混床三种,在使用范围上可分为实验室用离子交换柱、工业用离子交换柱。
工作原理:
混合离子交换,就是把阴、阳离子交换树脂放置在同一个交换器中,在运行前将它们均匀混合,所以可看成是由无数阴、阳交换树脂交错排列的多级式复床,水中所含的阴、阳离子通过交换器,被树脂交换而得到高度纯水。
在混合床中,由于阴、阳树脂是相互混匀的,所以其阴、阳离子交换反应几乎同时进行,水的阳离子交换和阴离子交换是多次交错进行的,由于进入混合床的水质较好,交换器的负载较轻,所以树脂的交换周期较长。
混合离子交换器采用体内再生法,再生时首先利用两种树脂的比重不同,用反洗方式使阴、阳离子交换树脂完全分离,阳树脂沉积在下,阴树脂浮在上面,然后阳树脂用HCL再生,阴树脂用NaOH再生。
应用:
混合离子交换器主要应用于锅炉、热电站、化工、轻工、纺织、医药、生物、电子、原子能等需要高纯水的制备
技术参数:
工作压力:≤0.6MPa
工作温度:5℃~50℃
运行流量:6.0t/h~500t/h
规格:Φ400~Φ3600
进水品质:电导率<10μS/cm
出水品质:出水电导率<0.2μS/cm。
设备照片:

混床

混床尺寸规格表:
