


产品中心
Product Center -
阴阳离子交换器
2024-07-09 11:28:33
产品详情
简介:
阳、阴离子交换器用于降低和去除水中的阳、阴离子的设备。
工作原理:
阳离子交换器采用HCL再生,阴离子交换器采用NaOH再生,阳树脂中的H离子与水中的阳离子进行交换反应去除水中的阳离子,阴树脂中OH离子与水中的阴离子进行交换反应去除绝大部分水中的阳阴离子。阴树脂去除阴离子,流速20-30。

应用:
主要用于锅炉、化工、轻工、纺织、医药、生物、电子等用水的除盐纯化制备,阳阴交换器出水即一级除盐出水。
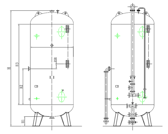
设备结构型式分为固定床、浮动床,一般使用固定床为多
1:根据再生方式可分为:顺流再生、逆流再生、无顶压逆流再生
2:根据出水装置结构可分为:水帽结构、石英砂垫层结构
3:根据用途可分为:单层、双层、双室双层等

阴阳离子交换器
技术参数:
工作压力:≤0.59MPa
工作温度:5℃~50℃
运行流速:20m/h~25m/h
流量:20T/H~200T/H
规格:Φ1000~Φ3200
进水品质:悬浮物≤5mg/L
出水品质:阳床出水总硬度为0,钠泄漏量不大于100微克/升,一般在20~30微克/升。
阴床出水电导率<10μS/cm。
阴阳离子交换器尺寸规格表:



